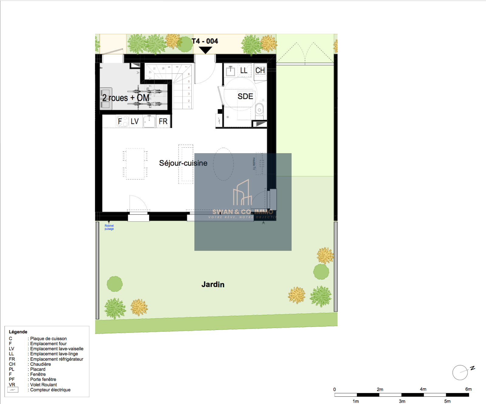
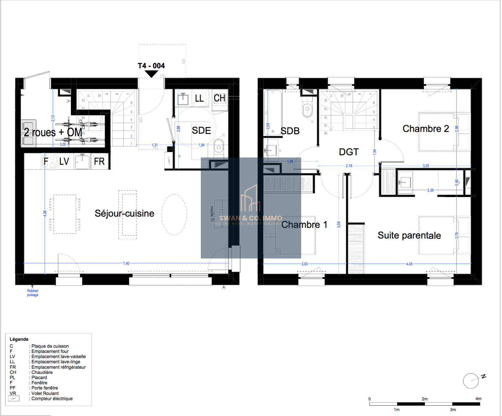
Au cœur d’un environnement paisible et recherché, découvrez ce magnifique duplex de 84.40 m², alliance parfaite entre esthétisme moderne et confort de vie.
Dès l’entrée, le ton est donné volumes généreux, lignes épurées et belle luminosité signent chaque espace. Le séjour, baigné de lumière grâce à de larges ouvertures, s’étend sur 34.14 m², offrant un cadre chaleureux et accueillant pour vos moments de partage. Il s’ouvre naturellement sur un jardin privatif de 57m², véritable havre de paix propice à la détente.
À l’étage, l’espace nuit se compose de trois chambres, dont une suite parentale avec sa salle d’eau privative. Une salle de bains avec WC complète cet étage, idéale pour répondre aux besoins de toute la famille. En rez-de-chaussée, une seconde salle d’eau avec WC vient compléter les prestations, apportant praticité et confort au quotidien.
Ce bien dispose de prestations soignées : carrelage en rez-de-chaussée, faïence toute hauteurdans les salles de bains, volets roulants à commande électriqueau rez-de-chaussée. Deux places de stationnement privatives et un local individuel viennent parfaire l’ensemble. Il est également possible de personnaliser les intérieursafin de créer un lieu de vie qui vous ressemble pleinement.
Il incarne une douceur de vie remarquable, alliant charme résidentiel et tranquillité. Proche des marchés locaux et bénéficiant d’un accès rapide à la rocade permettant de rejoindre Mérignac en 20 minutes, le quartier est également parfaitement desservi par les réseaux de transports en commun, notamment via la ligne C du tramway TBMreliant directement Bordeaux. Le développement des infrastructures cyclablesfacilite par ailleurs les déplacements vers les établissements d’enseignement supérieur et de formationà proximité (ISVV, ISNAB, Lycée Vaclav Havel...).
Pensé pour un mode de vie moderne et fluide, ce bien séduit par son agencement équilibré, ses volumes optimisés et son atmosphère apaisante.
Contactez Swan Cailleux de Swan & Co Immo pour organiser votre visite.
Les informations sur les risques auxquels ce bien est exposé sont disponibles sur le site Géorisques : www.georisques.gouv.fr
Swan CAILLEUX est en charge de ce bien, 07.69.05.09.93 / swan.cailleux@swanimmo.com
