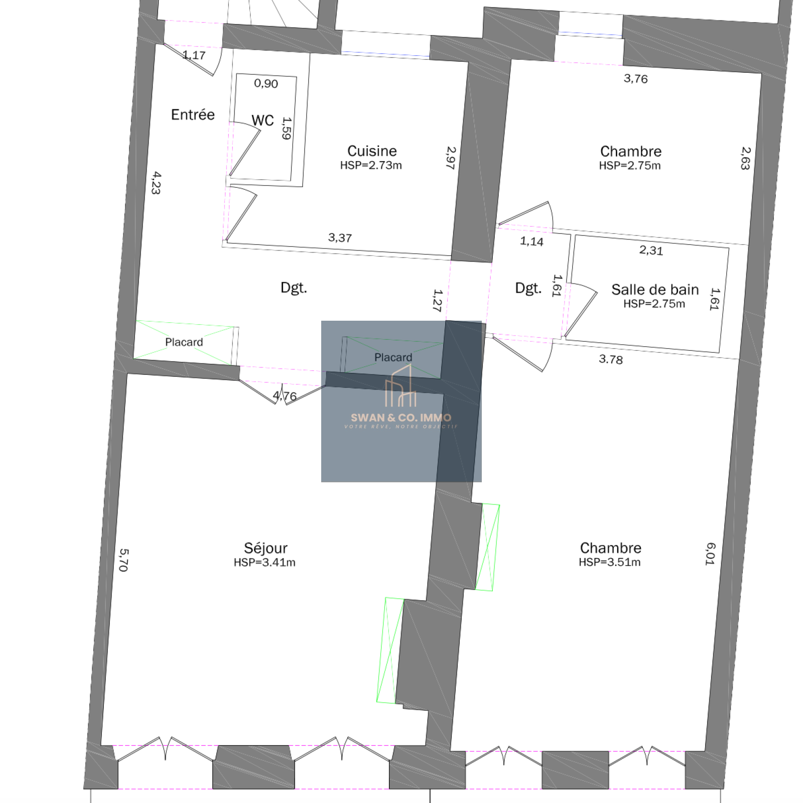
Au cœur du centre historique de Bordeaux, à quelques pas de la majestueuse Grosse Cloche, cet appartement de caractère de 86,24 m² prend place au premier étage d’un immeuble ancien au cachet remarquable.
Dès l’entrée, le charme opère : hauteur sous plafond, moulures d’époque délicatement conservées, cheminée en marbre, volumes généreux et lumière traversante. L’ensemble offre une atmosphère élégante et authentique, sublimée par les prestations d’origine soigneusement préservées.
La pièce de vie bénéficie d’un balcon filant exposé sur rue, offrant une vue vivante sur l’environnement historique, tandis qu’à l’arrière, une rare terrasse en L prolonge les espaces intérieurs dans un cadre plus confidentiel et paisible. Ce double espace extérieur constitue un privilège exceptionnel en hypercentre.
L’agencement actuel permet de conjuguer réception et confort de vie avec fluidité. La distribution optimisée des 86,24 m² offre un équilibre harmonieux entre cachet patrimonial et potentiel d’aménagement contemporain.
Une adresse recherchée, au cœur d’un quartier vibrant, à proximité immédiate des commerces, des restaurants et des transports, pour une vie citadine raffinée dans l’un des secteurs les plus emblématiques de Bordeaux.
Un bien rare, conjuguant élégance intemporelle et emplacement premium.
Contactez Swan CAILLEUX 0769050993 / swan.cailleux@swanimmo.com. Les informations sur les risques auxquels ce bien est exposé sont disponibles sur le site Géorisques : www.georisques.gouv.fr
